Skip to main content

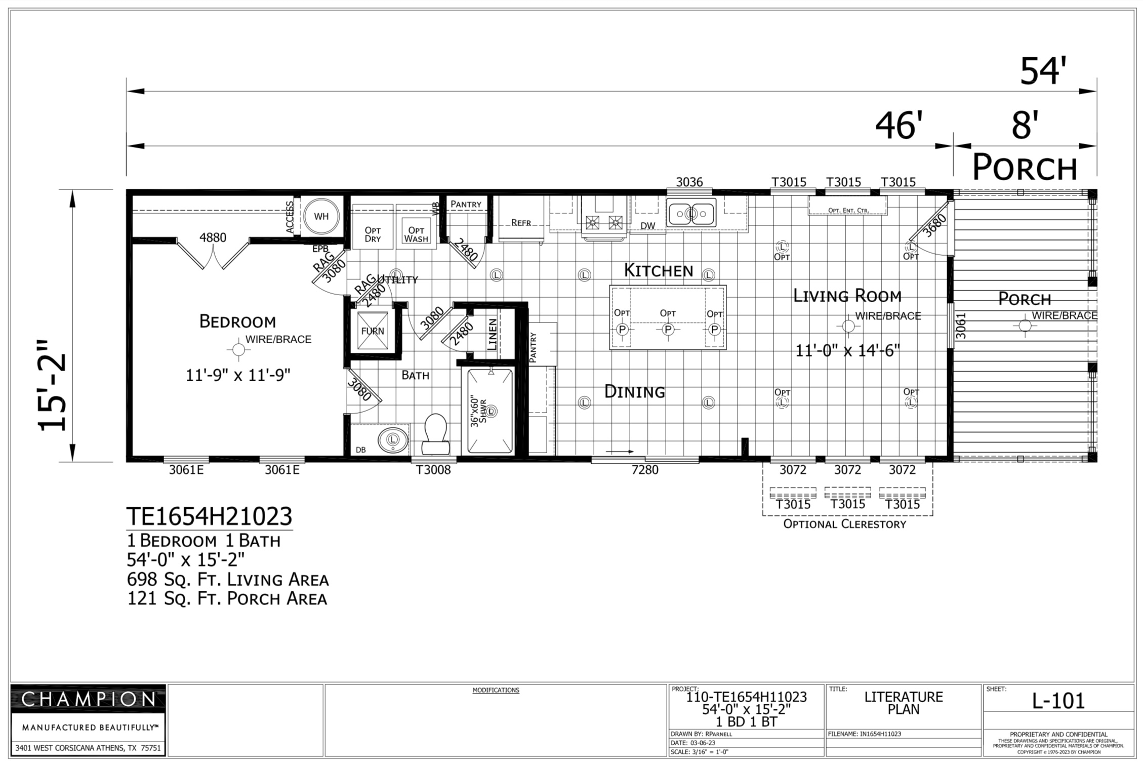
TE1654H11023

$119,000.00s* BEFORE OPTIONS

1 beds     1 baths     698.00 sq. ft.
REQUESTING INFORMATION

TE1654H11023


By submitting this form, I agree that NM Country Homes may contact me by telephone, provide me with marketing communications about NM Country Homes products and services, and share my contact information as described in our website terms.
*Images may show options not included in base price
Skip to content