Skip to main content

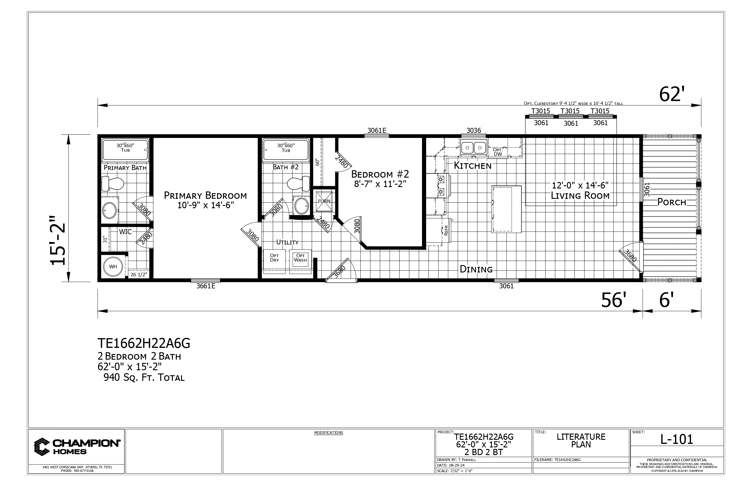
TE1662H22A6G

$119,000.00s* BEFORE OPTIONS

2 beds     2 baths     940.00 sq. ft.
REQUESTING INFORMATION

TE1662H22A6G


By submitting this form, I agree that NM Country Homes may contact me by telephone, provide me with marketing communications about NM Country Homes products and services, and share my contact information as described in our website terms.
*Images may show options not included in base price

Floor Plan


Skip to content