Skip to main content

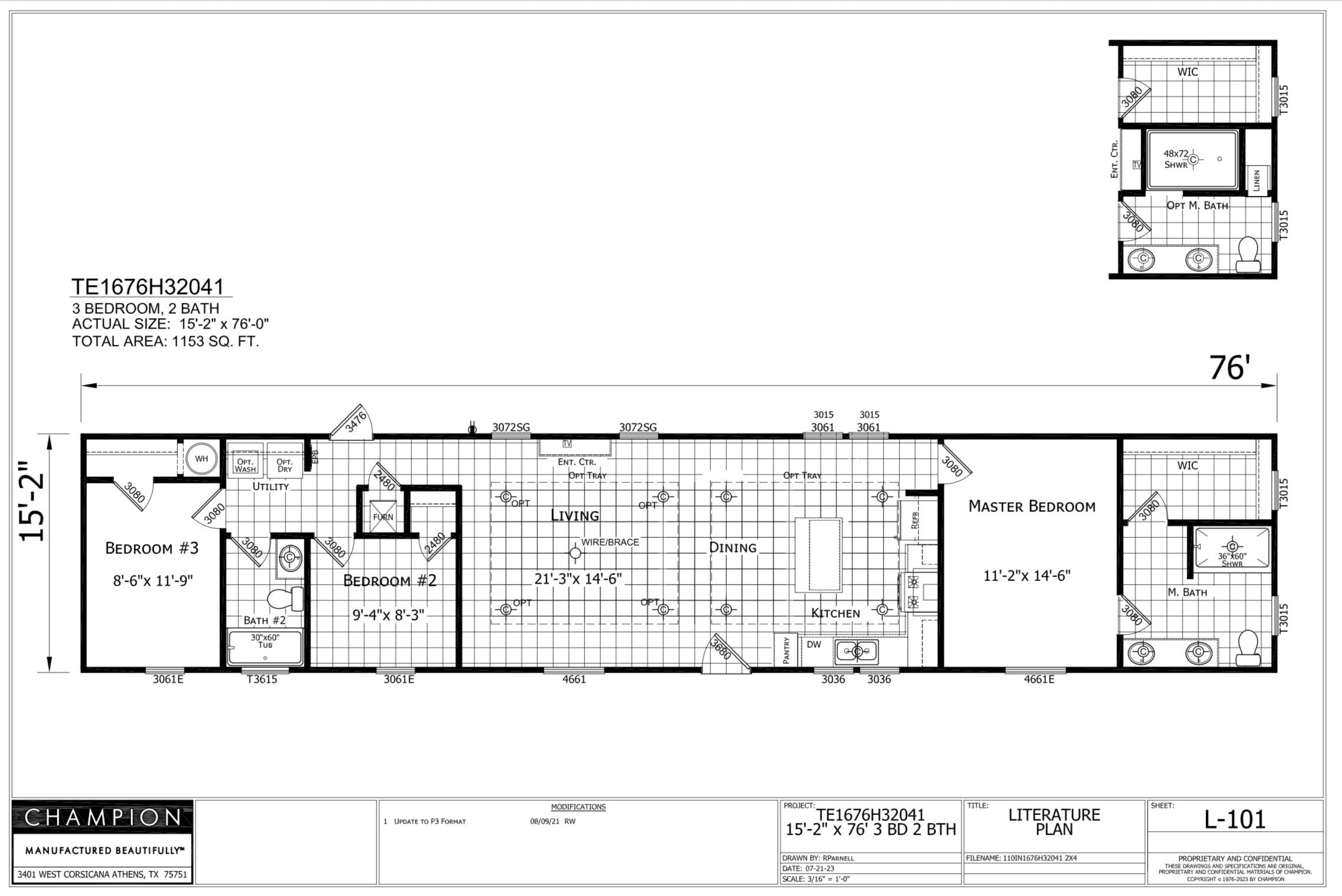
TE1676H32041

$130,000.00s* BEFORE OPTIONS

3 beds     2 baths     1,153.00 sq. ft.
REQUESTING INFORMATION

TE1676H32041


By submitting this form, I agree that NM Country Homes may contact me by telephone, provide me with marketing communications about NM Country Homes products and services, and share my contact information as described in our website terms.
*Images may show options not included in base price

Floor Plan


Skip to content